希臘時代亞里斯多德曾經說過:「建築的本質是由這樣的公式而決定的:一件可抵抗風、雨、熱所引起毀壞的遮蔽物。」;定義了建築物的本質就是人類遮風避雨的場所,也就是人們生活的容器。(科比意)建築養成教育裡面包含了物理環境、環境控制、材料、結構力學、人體尺度與空間設計等,無非是希望設計出來的建築物能夠提供人們舒適的環境空間。
所以建築師要把上述各面向的設計考量包含到自己的設計圖說當中,而在現在社會當中,建築師做建築設計而營造廠則是按圖施工,所以圖說是溝通整個營造團隊間思想的橋梁,是營建工程中的一種重要依據。
既然要與其他成員「溝通」,大家就要有相同的語彙,這樣才能正確的表達設計的意向,而將空間物體表現為平面圖形是守則就是圖學 ( Graphic Science ) ,也就是畫出的圖像具有正確且單一的反映所要表達的原形 ( True Feature ) ,不能有模棱兩可的空間。
而現在的營造工程不論在設計或施工上生產週期都被壓縮,而參與的團隊與專業也日益複雜,加上各種奇特造型的外觀與創新工法材料的引入;因為專業的分工與繪圖習慣的差異,所以越來越多的工程爭議往往都是在圖上的標示不清或者是衝突矛盾等。
在我們公司進行事務所 BIM 標準導入工作之時,最常被問到的問題往往是CAD可以畫出這樣的圖或者表格,BIM 可以嗎?或者是我想要這樣標示為何做不到;當然在BIM的軟體中有很多設定可以使最後的產出接近 CAD 的圖說,不過在我們有3D的模型可以更清楚的描述一個構件的存在與接合方式,讓團隊更清楚的了解它與其他物件的關係之時,當我們擁有模型的資料庫,可以把資料作更詳實清楚的報表產出時,我們是否還需要死守過去數十年 CAD 時代下的繪圖規則與產出標準呢。
在分享的下文之中,作者從古希臘時代建築與圖學表現的關係,經過中世紀到現代繪圖、CAD 時代及 BIM 的作業帶來的得失等,有執行的比較與心得,BIM 的技術只會日益進步而有更多的用途,但 CAD 至今已經難有大幅度的演進與運用方向了,就好比當初的智慧手機問世一樣,很多工具用了就回不去了。
本文引用自:《建筑技艺》2015年第10期,感謝同尘设计授權轉載
BIM 技術在建築行業中的出現和發展,已經顯得越來越難以忽視。相比於嗤之以鼻的反感漠視或盲目衝動的妖魔化的技術崇拜,我們似乎應該保持更審慎和耐心的心態來接觸和審視它。下面,我們嘗試著將新興的 BIM 技術放回到漫長的建築學發展歷程中,看看能得到些什麼?
關於繪圖術
回溯到西元前 7 世紀,古希臘的建築師是用模型配合文字標籤的方式來闡釋設計意圖和建造要點的;到了西元前 5 世紀,也就是衛城的時代,建築師開始採用足尺的細部模型來推敲和規範建築裝飾的操作,但仍然罕有關於圖紙的記載;在此後的近兩千年裡,建築師更多以「寫作」的方式來交代設計。那時的建築先驅,如戴達羅斯(克諾索斯宮的創造者)、伊克蒂努斯(帕提農神廟的創造者),不僅要有卓越的藝術天賦,更須精通各類匠作工藝並熟悉材料。那些神廟建造的主持者定然是超人,鳳毛麟角甚至不世出,而建築設計也很難成為「行業」。
可以說,正是繪圖術的出現才催生了現代意義上的建築師行業。人類真正系統地以繪圖作為傳達、闡釋建築設計意圖的手段是從 16 世紀的人文時代開始的。一方面,如阿爾伯蒂、塞利奧、帕拉第奧等大師仍沿襲著維特魯威「十書」式的寫作;另一方面,伯魯乃列斯基將透視法科學化了,藝術家們終於得以通過圖紙來精確地推敲空間和形體的視覺呈現,而瓦薩里在佛羅倫斯創立的藝術設計學院則將系統的繪圖術普及開來,並藉此將建築學的思想層面從匠人的手工傳統中解放出來(圖 1)。
繪圖術之為「術」,不僅是製圖與表達的「技術」,從某種意義上更是決定設計方法的「學術」。基於不同繪圖術所執行的建築設計,所獲得的形式類型也必然不同。比如,文藝復興的建築群及單體內部閃出那條通敞的視廊軸線,是通過由連續透視線來實現空間表達的科學透視法推敲設計的必然結果,以透視法為起點是不可能獲得以影壁開始序列的中式庭院或放置屏風的中式空間的(圖 7、8)。
現、當代繪圖術觀察
不同繪圖術在設計方向上的取捨,在不同的時代及不同大師們的手中固然能帶來不同的設計類型和形式風格,但倘若我們把目光投向「世俗」中的整個行業重新審視,其所「取」者,通常多關乎社會生產力,而其所「舍」者,帶來的恐怕就是行業頑疾。
如今的多數建築師仍基於 16 世紀以來的剖切-投影圖工作,同時沿襲著現代主義的傳統 — 主設計介面多預設為平面圖(規範的工程圖紙排序將總平面和平面圖放在整套圖紙前面)。關於這種繪圖術選型的優勢,前文已述,這裡我們主要審視其缺陷和盲點。
對於前文所提到的設計力量投放不均的問題:隨著行業規則的不斷豐富、完善,各類投影圖都有著明確的深度標準,從某種程度上均衡了分配在不同視圖介面上的設計力量;從管理上,技術分工的進一步細化讓許多從業團隊有機會分派不同的設計師分別執行平面和立面的設計,這也有效地通過團隊配合緩解了由主介面選擇所帶來的對其他介面的漠視。但問題也隨之而來 — 在各介面上分別執行的設計趨於離散,同一設計要素被繪製在不同的視圖中,甚至被不同的人分別設計,許多建築師對設計的推敲僅對特定的視圖負責,不同視圖間的對應關係通常僅能通過「對圖」來保障。隨著設計在各介面上的不斷推進、深化和修改,通過對圖或經驗來維繫的對應會越來越脆弱,「不交圈」的問題幾乎成為必然。
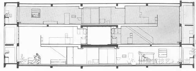
即便拋開「不交圈」的技術焦慮,分介面的操作也導致了對空間塑造的漠視 — 儘管空間被認為是現代建築的絕對核心。無論在平、立、剖任一介面中,我們都不可能直觀地獲得空間判斷,在分面投影中反映的空間形態僅由讀圖者在意識中拼合、還原而成,這是當代建築教育中如此強調「空間想像能力」的原因。換言之,在常規的設計介面中,根本就沒有提供直接針對空間檢視和推敲的視圖,而這種基於剖切-投影圖建立起來的圖紙體系,同樣也使空間成為設計審核、校對以及溝通的死角 — 對於全領域而言,我們無法想像僅憑空間想像來推進的設計能達到什麼樣的普遍深度和精度。當然,諸如 SketchUp 之類的軟體技術都在致力於彌補上述空白且確實行之有效,但這種空間製圖與標準設計製圖分離的狀況,仍無法避免前面所討論的由於視圖介面分離而導致的不交圈問題;從行業角度來看,在設計過程中加入空間建模環節也會導致工作量激增,與投影圖同步推進空間模型勢必導致週期延長,而分階段跟進空間模型則又使問題回到空間判斷與設計推進的分離。由此引發的問題不止出現在對空間效果的把握上,在空間關係稍複雜的設計中,諸如設備管線的佈置或材料構造的交接之類容易在空間中發生碰撞的錯誤,很難在標準的技術圖紙中獲得及時的糾錯,這些原本非常直觀和簡單的碰撞檢查,卻成為校對和審圖環節中最重要和核心的工作,並往往需要由經驗豐富的老將來完成。即便如此,仍有大量問題被推到施工現場才被發現。因此種種,許多建築師只好在設計成果中將空間體驗寄託於效果圖渲染所製造的「幻覺」;而面對工地上的管線碰撞,也不得不通過「降低吊頂」來逃離現場 — 這些都無異於飲鴆止渴。
上述問題都出在不同投影介面之間的關係上,但即便回到單一的剖切-投影介面中,我們仍然能看到類似的問題 — 這一問題恰是由剖切引起的。如前文所分析的,剖切的妙處在於它為建築師呈現了某些在平常的視覺體驗中無法呈現的關係,但在呈現之前,我們首先要對空間實施剖切,而剖切的位置不同,其所反映的關係可能也存在極大的差異 — 理論上,一張剖切圖只能闡釋空間中極窄、極薄的區段內的關係。需要特別指出的是,這並不是增加幾個剖切位置就能解決的問題:通過剖切反映既有空間的關係,與在選定的剖切介面上執行設計完全是兩回事。對於設計操作而言,一旦剖切位置以及由剖切所確定的初始關係被事先確定下來,建築師評估和推敲這些關係的思維層面也被鎖定了 — 因此,與其說建築師是在通過剖切圖來設計空間,不如說是在設計那張剖切圖本身。在這樣的設計介面中,被剖到的關係無疑能獲得精確和透徹的解決,但如果建築師企圖將這些解決貫徹於整個空間,那麼他就必須用這幅剖切圖來規範與剖切位置相連續的其他空間關係,並通過沿著垂直於剖切面的方向拉伸來生成空間(圖 14)。事實上,許多建築師是通過同化空間的生成方式來確立剖切圖的「代表性」的,而不盡如我們通常認為的,選擇有代表性的剖切位置來解決空間問題 — 這是宿命。
CAD
立足於前文對繪圖術的追溯與觀察,我們不難發現如今中國建築設計領域通過以 CAD 為代表的電腦輔助製圖技術所執行的繪圖術操作,與 16 世紀以來建立的剖切-投影圖的製圖體系並沒有本質上的差別。這樣的結論聽起來不合情理,但建築學作為一門非常古老的學科,自古至今其實一直固守著非常穩定的學科核心,尤其對工具而言,出於建築學所固有的人文、藝術特性,比起那些科學技術含量更高的其他理學或工學領域來,工具所能帶來的根本性變革往往非常有限。
就像鋼筆取代鵝毛筆所帶來的便利,並不會從根本上改變寫作的方式一樣,當初針管筆取代了鴨嘴筆的時候 — 這一轉變其實發生在非常近的「當初」 — 建築師們也並沒有為此準備迎接一個全新的時代。因為從動作上看,手握針管筆的「現代」建築師,仍然非常明顯地與 16 世紀的人文主義者們執行著相同的操作。同樣以文學來類比,用電腦打字來執行寫作的文學家,究竟比他奮筆疾書的前輩們「進步」在哪裡呢?而即便存在這種「進步」,那恐怕也早在打字機發明之時就已經發生了。同理,我們恐怕也有必要仔細審視此前的資訊技術(IT)帶給建築學領域的改變。
總體而言,CAD 在製圖中的作用主要是其替代了手工繪製,而從圖學原理上則並無革新。有趣的是,中國現行的《房屋建築製圖統一標準》(目前的版本是 GB/T 50001-2001)在總則中就說明該標準是同時適用於電腦製圖和手工製圖兩種方式的,其圖紙尺寸與線寬組合的基本規定也完全是圍繞著手工出圖的邏輯來制定的。
那麼,CAD 的優越性體現在哪呢?首先,度量精准是基於電腦技術最直接的優勢。與手工製圖先確定比例尺再繪製的方式不同,CAD 的繪圖空間可以實現無限廣闊的真實尺寸,剖切-投影圖被以真實的尺寸繪製出來。一方面,這省卻了紙上繪圖過程中的資料換算,使尺寸的思考和確定更加直觀,避免了換算環節中可能出現的錯誤;另一方面,這也為更智慧的尺寸標注和出圖提供了前提。
從不同設計精度的表達方式來看:紙上繪圖由於比例的限定,需要在不同的比例尺下繪製不同尺度和精度的圖;而 CAD 的繪製空間不僅無限廣闊,而且可在螢幕中無限縮放檢視,這在理論上就完全支持設計者將設計進行無限深化。換言之,設計的表達精度不受圖紙幅面和線條密度的限制。
CAD 領先於手工繪圖的另一得天獨厚的優勢,是它在「複製」和「修改」兩種操作上的便捷。在手工製圖的時代,兩張圖紙無論有多少重複的內容,都需要分別完全繪製,而相同的技術設計(如節點詳圖)也不得不在不同方案中反復繪製。所以,在電腦製圖並不普及的年代,除依賴對《標準圖集》的索引外,還有通過直接索引「重複利用圖」來作為提高效率的權宜之計 — 這種索引至今仍寫在現行的《建築工程設計檔編制深度規定》中,但在實踐中早已絕跡了。基於電腦製圖,建築師可以很方便地將既有的成熟做法複製到新的設計中,把交接關係交代清楚並做出必要的調整。對於讀圖而言,能將各部分設計呈現於同一套圖紙,比起在圖紙索引下翻閱各種圖集,顯然更具優勢。而修改的便捷,則不僅直接解決了手工製圖中在墨線上改圖的麻煩,還讓有較高相似度的設計得以基於同一份圖紙修改而成。
從繪圖術的角度來看,上述優勢都只關乎「怎麼畫」的問題,而很少觸及到「畫什麼」。相較於手工製圖邏輯,CAD 對繪圖術最大的突破在於它可以支援基於「圖層」的繪製。當然這並不是電腦技術的首創,「圖層」的概念來自將繪製不同內容的透明膠片相疊加,從而將原本抽象和孤立的分析圖重新綜合起來。在設計領域中,圖層的方法曾廣泛應用於麥克哈格的景觀生態學中,並被形象地稱作「千層餅」。CAD 繪圖空間中的圖層避免了膠片疊加後在清晰度上的損失,可以成為名符其實的「千層餅」。建築師通過將不同邏輯的圖形繪製在不同的圖層上,使圖式獲得了多樣的分析性,並可在不同的意圖下自由地讓特定的圖層隱藏、顯現和疊加,而對線型、色彩的選擇又進一步豐富了分析的維度 — 這帶來了真正的繪圖術領域的變革,建築師由此獲得了前所未有的便捷的系統性分析視角。
CAD 的普遍應用,確實帶來了繪圖效率的提高以及修改、變更品質的改善,但是必須指出的是,由於目前行業中仍以列印或曬圖作為規範的出圖成果,這實質上將設計成果的輸出重新錨固在了 16 世紀的技術標準上。在「圖紙」上,不僅精確、即時的度量無法實現,最關鍵的是,有著變革意義的圖層資訊完全被放棄了。當然,這並不完全源自設計領域的內部選擇,很大程度上也出於配合施工階段照圖施工的技術習慣,這是整個行業鏈條帶來的問題。比起材料科學、施工技術的更新頻度,設計領域的技術演進顯得異常微弱和遲緩,這更讓圖層方法的引入顯得彌足珍貴。
當前建築師對圖層的應用,早已放棄了其作為成果輸出的可能性,轉而將其作為團隊內部技術管理的環節,多用圖層來實現對設計要素和圖則要素的分類管理。由於行業標準對圖層功能的漠視,圖層在分析、表達上的巨大潛力一直未能得到充分的開發。這是非常可惜的事。
一個有趣的問題是:既然 CAD 在繪圖術上帶來的實質性變革有限,那麼是什麼讓我們在手工製圖與電腦製圖之間感受到如此巨大的差異呢?是動作。儘管 CAD 製圖與手工製圖輸出了相似的圖紙成果,但前者通過滑鼠和鍵盤的敲擊實現,後者則以手執筆完成 — 這是為什麼同樣作為工具革新,針管筆取代鴨嘴筆時我們幾乎感覺不到改變。
改變技術動作給建築師帶來的影響絕不僅在製圖途徑方面。
首先,手的靈活度遠遠超過滑鼠,這讓手工製圖更適合推敲和表現自由、微妙的形式變化;而在繪製直線、圓等規則、理性的幾何形時,則必須借助工具。比較而言,CAD 的製圖邏輯剛好相反,越規則和理性的圖形,就越匹配電腦的參數邏輯,也就能越快捷地被繪製出來,而對於缺乏參數控制的自由形,CAD 的「樣條曲線」功能不僅在繪製上捉襟見肘(很多時候是以描圖的方式完成的),在推敲和調整時就更顯笨拙。好在,現代主義美學為當今的建築定下了相對簡潔的基調,而工業傳統又給建築技術提供了相對標準化的材料及工藝範式,所以CAD在繪製自由形上的短板並沒有在今天帶來行業性的困擾 — 試想同樣的短板如果放在文藝復興或新古典主義時期將帶來的災難性後果吧(圖 19)!反過來,這種製圖上的偏好又反過來進一步加強了當代建築師的形式選擇。
這種形式表達多樣化的傾向,似乎又與前面討論過的由電腦製圖特徵導致的形式偏好相矛盾 — 其實,這是一個非常古老的問題,拋開古典主義的控制線不談,近在19世紀末,路易士·沙利文就通過「無機」的幾何演算來生成「有機」的自然圖形,希望由此追尋自然形式的理性原則,這裡已經蘊涵了典型的「參數化」思想(圖 20)。在沙利文的時代,這種做法充滿哲學意味,但在電腦製圖的時代,參數化不僅彌補了電腦製圖的短板,還在有理化的同時極大地拓寬了形式類型。
BIM 帶來了什麼
終於談到 BIM 了,這是一個過新的話題,儘管闡釋 BIM 的人傾向於將其追溯得遠些,但形成今天意義的 BIM 概念卻是非常新近的事。在建築學這樣古老的學科體系裡,這不過十數年的新事物甚至無從判定價值,所以,我們恐怕要追溯得比遠些更遠些才行。
重新審視「BIM」的意義:B-Building;I-Information;M-Modling。其中,「建築」是範疇定義,無須多言;而「資訊」與「模型」兩個核心概念,居然回到了古希臘時代的在建築模型上添加標籤資訊的古老模式。這是一個令人驚喜的發現,我們也許並沒有迎來一個劃時代的新事物,倒是回歸了比文藝復興還遠為古老的方法 — 這樣一來,我們反倒可以參詳,BIM 可能為我們帶來什麼。
1. 直觀性
由於建築設計是計畫還未建造的房子,所以籌畫者(建築師)總要借由某些在眼前可見之物來幫助推敲。從這一點出發,那「眼前之物」一定是趨於直觀的,會盡可能逼近最終預期的成果 — 這正是模型的妙處。
BIM 在設計介面上對模型的回歸,在某種程度上幫建築師尋回了久違的直觀性。當然這絕不是「退步」,如前文所討論的,16 世紀以來的繪圖術借由抽象的圖形解碼機制,説明建築師在同一張圖紙上呈現和推敲更多的資訊,但恰恰是其抽象性,讓圖紙成果與建成成果在認知上漸行漸遠;而 BIM 的直觀性則重新給予建築師「直接」推敲建築的機會。從模型角度來看,傳統的建築整體模型很難做成可步入的足尺模型,所以古希臘以來對建築的討論多集中於建築的外觀體量,對於這一點,只要比較一下帕提農神廟的「外觀體量」與「內部空間」在對後世影響上的落差就可知曉,一直到文藝復興,即便是相對大尺度的模型也仍然只能用於推敲外觀(圖 21);反觀建築資訊模型(BIM),與 CAD 一樣,模型是在無限空間中建立的虛擬實境,不存在成比例縮小後在體驗尺度上的限制,可以同等地獲得外觀體量與內部空間的虛擬體驗,這是 BIM 模型更勝真實模型之處。
在這種空前的模型細度下,在建築資訊模型(BIM)構築的虛擬實境世界裡,模型不僅能説明建築師檢視外觀體量和內部空間,還能輔助材料、構造等細部技術設計在空間維度中的操作。
如果 BIM 技術為建築師帶來的改變僅在模型的細度上,那麼我們就完全無從討論它可能對傳統繪圖術掀起的波瀾。古希臘模型體系在獲得直觀性的同時,其技術資訊的含量和精度是遠不及剖切-投影圖的。為此,用於闡釋抽象化、系統化和要素化設計要點的文本標籤就變得必不可少,由於這類純粹資訊文本的介入,設計資訊密度被極大地提高了 — 我們甚至可以認為,絕大多數設計的推進和深化都是在「處方籤」上通過寫作的方式實現的。如果說在建築學中,實體模型和虛擬模型從未真正退出過建築師的操作體系,那麼 BIM 技術真正尋回的,正是那張被塵封已久的「處方籤」。
那麼,如今的「做法標注」和「設計說明」是否是古希臘設計處方的後裔呢?並不儘然。
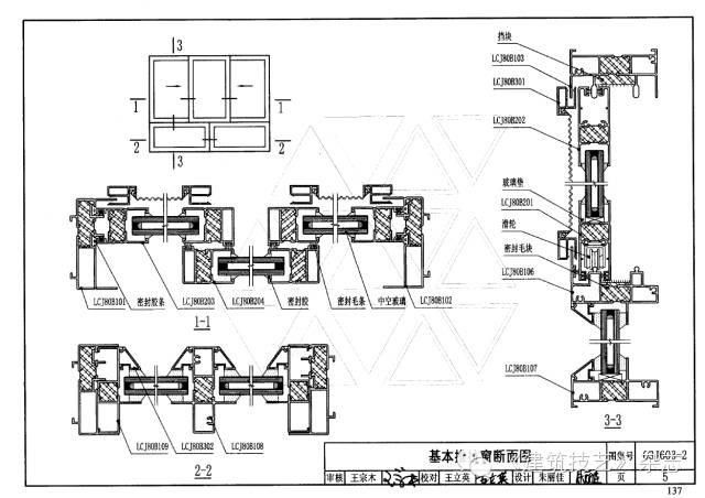
做法標注是完全遵從剖切-投影圖的邏輯佈置和展開的。在典型的平面、剖面投影圖中,對任何獨立的建築要素都沒有完整的資訊表達,每個要素都只呈現為在剖切面上的一個斷面形狀。在這種情況下,對建築要素的標注幾乎是不可能的,真正能實現的其實只是對要素中一個特定剖切斷面的標注,這些標注並不能被整合進對單個建築要素的設計中,而是被分別分散在不同的平面和剖面圖裡(圖 23)— 所以,做法標注是作為剖切-投影圖的附屬說明呈現的。這裡略有特殊的是詳圖,規範的工程詳圖是由一組對同一要素不同位置和方向的剖切圖構成的,比起平面圖和剖面圖中的做法標注來,其整體性和系統性更強,但內容仍多以闡釋剖切層次關係為主,資訊仍然是離散的。總體而言,做法標注儘管是文字性的,但它的操作邏輯更接近於「繪製」。
相較而言,設計說明的特徵與古希臘的「處方籤」更接近。設計說明有完整、系統的書寫邏輯,解決普遍性的設計問題,闡釋系統性的設計邏輯與要領,並且與剖切-投影圖系統各自獨立,並不追隨圖紙標注,資訊性強,屬於典型的「寫作」方法。設計說明的短板在於,由於通篇獨立成文,它與圖形資訊的對應度偏低;同時,在針對建築要素的設計要點的闡釋上,儘管設計說明擺脫了剖切圖的離散框架,但通常只能對要素以類為單位組織資訊,資訊的精度和細度仍然受限。
反觀 BIM 技術的資訊系統,其基本框架與古希臘的模型-資訊簽的方式非常相近。由於視覺化的圖形是三維模型而非投影,資訊標籤可以直接與建築要素的實體關聯,甚或純文字資訊就是建築要素的一部分(圖 24)。
而各類資訊的密切關聯及分析性,恰恰是 BIM 技術得天獨厚的優勢。以 Revit 平臺為例,任何一級獨立的建築要素,都有一個唯一名的歐姆尼分類編碼(Omni Class)與之對應,這使得所有要素都先天獲得了獨一無二的資訊附著點。從操作角度而言,文本資訊不止是以寫作的方式生成,在建模過程中執行的圖形資訊也會同時生成與之並行的文本資訊。相應的,由書寫方式輸入的文本資訊,也會決定或改變與之相對應的圖元。換言之,圖-文之間並沒有主動與從動的關係,無論從哪種途徑輸入或編輯資訊,都會獲得與之相關其他形式資訊的回應 — 在圖面上執行的門窗設計和選型工作不僅能動態地同步生成門窗清單,同時,對門窗列表的修訂也能同時實現對圖面的修改(圖 25)。
3. 標準化
在古希臘的模型製作中,模型總是比目標建築縮小許多倍的。從幾何學上,這是相似形原理,簡言之,希臘建築美學的「比例」體系就是一套以相似形比例控制而不限定尺度的美學法則,這與建築師從推敲小尺度模型開始到完成等比例的大尺度建築的工作過程不無關聯。在有限的比例控制下,不僅方便模型的製作和推敲,同時也有利於建築要素的規格化製作。這是一套極具優勢的建築法則,從古希臘時代創生的多立克、愛奧尼和柯林斯三種柱式,古羅馬時代增加了塔斯干柱式,文藝復興時代增加了組合柱式,五柱式的法則在古典主義語境下沿用至今,這或許是最早的也是貫徹最長久的「標準化」體系了(圖 28)。
BIM 平臺中的標準化功能,不僅能幫助建築師在不轉換表達邏輯的前提下完成設計,同時也實現了模型建立上的標準化機制,由於系列標準蘊涵於相同的「類」(Revit 中為「類別」)中,使得建模上的標準化更勝於建造的。所以,許多應用 BIM 技術在兩三年以上的設計團隊,由於有了充沛的標準化要素的積累,可以大幅提高設計和建模效率(圖 31)。
在標準化的討論中,其實已經涉及了參數化的問題。在 BIM 技術中,參數也不止應用於標準,其實 BIM 模型的形式生成模式就是參數化的。
前文已述,不同的繪圖術邏輯對建築的操作重點會產生微妙的影響。剖切-投影圖邏輯下,建築師會不自覺地將剖切面複雜化;古希臘的模型製作,是遵從於雕塑邏輯的,這使得建築也更依賴雕塑式的裝飾表達。那麼, BIM 技術會導致什麼樣的設計傾向呢?
首先,儘管是模型,但虛擬環境中的 BIM 模型顯然不遵從雕塑邏輯,這是為什麼儘管 BIM 建模可以執行複雜雕飾模型的操作,但在操作上仍顯繁瑣。第二,從技術動作上分析,電腦建模是基於滑鼠定位和鍵盤輸入的,那麼最適合的建模方法應該不是「畫圖」,而是「寫圖」 — 輸入參數恰恰是最適合電腦建模的模式。從這一點上, BIM 模型的構形方式及技術動作與CAD更加接近,都不太適應自然、隨意的形體,但在數學參數控制下的構形上卻表現卓越(圖32)。
有趣的是,參數化將 BIM 技術的適用邊界同時拓展向「技術標準化」與「形式非標化」兩個極端,這不僅能豐富建築設計的視野和手段,或許甚至還將改變建築師從事建築設計的基本思維。
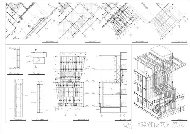
接下來談談建築師對於新技術最為關心和焦慮的問題 — 出圖。無論是「資訊化」與「參數化」的「寫圖」邏輯,還是以模型為中心的操作介面,都必然導致建築設計成果的變革。然而與此矛盾的是,成果標準作為行業標準的基石,也作為建築全週期中設計階段與其他環節的交接手段,往往是最難變革的。因此,我們必須審慎地觀察和評估新技術在既有成果標準下的表現。現行的行業出圖是基於剖切-投影圖的,從16世紀起建築師就在此操作介面下執行設計了,那麼「出圖」並無需周折,只是對設計操作的定稿和規範化而已。從出圖角度而言, BIM 技術相較犀牛、SU等模型工具最大的優勢,就是可以直接通過剖切模型來獲得符合工程圖紙標準的投影圖,這也是 BIM 有機會成為核心設計平臺的前提。
前文已述,這種基於剖切斷面來呈現建築詳情的成果,由於對剖切位置以外的圖形資訊缺乏表達,對於那些構形邏輯較複雜的形體,要想構建起清晰的空間及體量表達,就必須大幅度增加剖切的位置和角度以豐富圖形資訊的闡釋。在手工繪圖以及CAD製圖中,每增加一個剖切面,就意味著成倍地增加了繪圖的工作量,從而極大地拉高了人力和實踐成本,同時圖紙間出錯的幾率以及修改設計時牽動的工作量都會被飆高;但在 BIM 工作模式下,由於設計成果是以模型方式構建於虛擬空間中的,模型中已經包含了豐富、全面的圖形資訊,建築師可以根據需要選擇剖切位置並形成圖紙,除了圖則設置、有限的細節調整等少量工作外,出圖計畫並不對工作量構成那麼大的影響。在現行的行業出圖標準下,能在設計成果中提交更多的剖切圖紙,尤其是能根據需要隨時「供應」特定的圖紙,成果交付以及後續跟進解決問題的品質無疑是大幅提高了。
但必須指出的是,增加剖切-投影圖的數量僅能讓整套圖紙的圖形資訊表達逼近模型的資訊量,卻不可能讓兩者的資訊量持平。所以,許多基於 BIM 平臺的出圖中,會圍繞著常規的剖切-投影圖插入一些直觀的透視圖、軸測圖以及剖軸側圖作為注解,以盡可能地將模型在圖形表達上的優勢和資訊量呈現出來,相比過於依賴空間想像的抽象的投影圖而言,這種補足已經極大地優化了讀圖環境(圖34)。
迎接變革,貌似已經萬事俱備了,東風何在?或許不全在建築師們的轉變,只要工地上的工人師傅仍然攥著圖紙工作,上述種種恐怕終是空談。不過,隨著平板電腦技術、空間投影技術、3D列印技術以及那些或許並不為建築師所熟知的技術的不斷完善、普及和降階,這一天可能並不太遠了。
被 BIM 帶走的以及將被帶走的









































羅兄加油,感謝您的編譯整理,值得分享給國內、產、官、學深思⋯